Save
Ask
Tour
Hide
Share
$254,900
1 Day On Site

4487 Wendell St
Pace, FL 32571

For Sale|Townhouse|Active
3
Beds
3
Total Baths
2
Full Baths
1
Partial Bath
1,537
SqFt
$166
/SqFt
2026
Built
Subdivision:
Parker Grove
County:
Santa Rosa
Listing courtesy of D R Horton Realty of NW Florida, LLC : WLJohnston@drhorton.com
Call Now: 850-483-1818
Is this the listing for you? We can help make it yours.
850-483-1818
4487 Wendell St4487 Wendell St4487 Wendell St4487 Wendell St
Save
Ask
Tour
Hide
Share

Mortgage Calculator

Monthly Payment (Est.)

$1,163
Calculator powered by Showcase IDX, a Constellation1 Company. Copyright ©2026 Information is deemed reliable but not guaranteed.

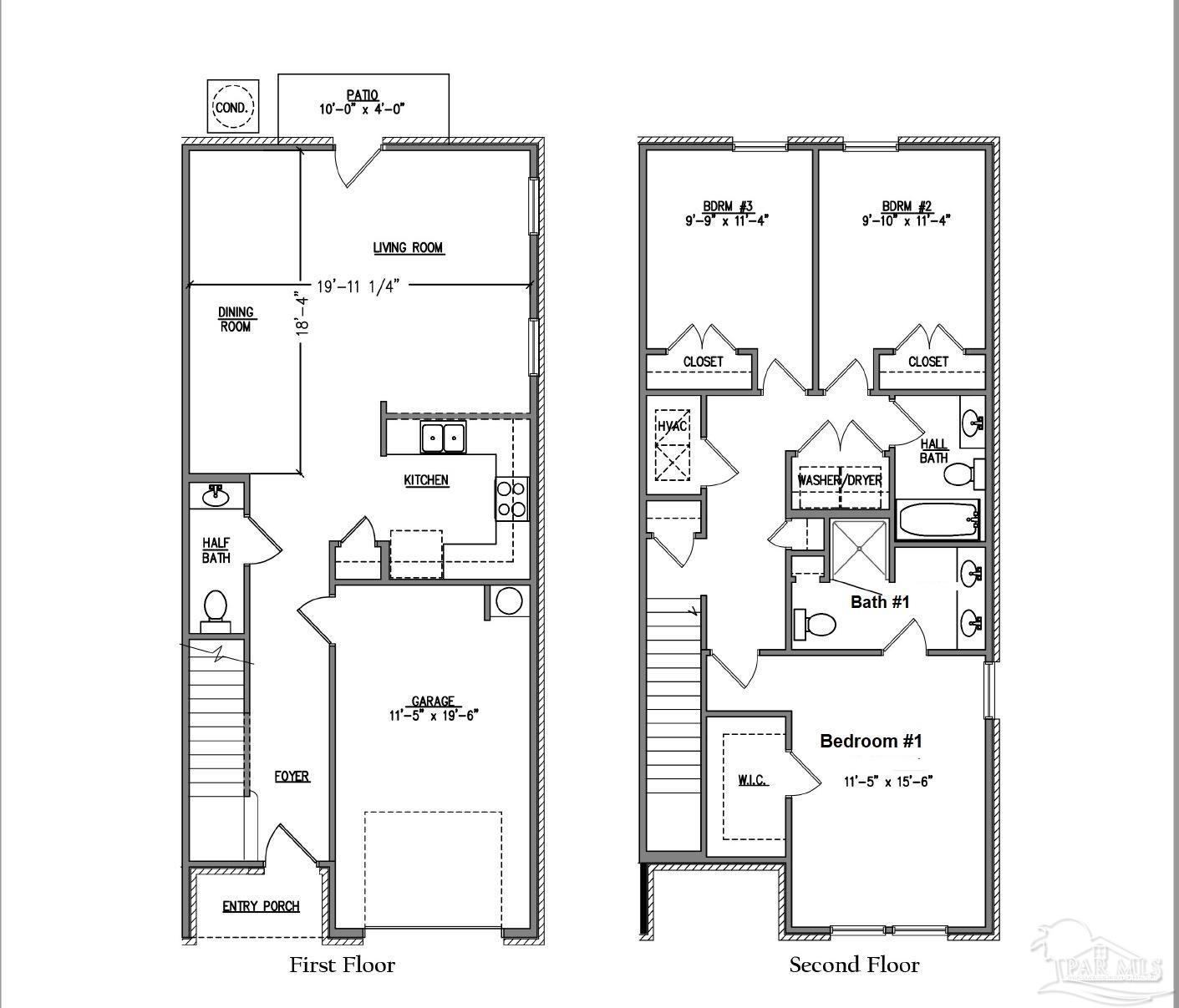
Explore the Palm, the featured floorplan of Parker Grove! The Palm features 3 bedrooms, 2.5 bathrooms, and a 1 car garage across 1,500 square feet. When entering the Palm from the covered porch, you are greeted by an inviting foyer on the first floor that leads to garage access on the right, and a half-bath on the left. Just past the half bath, you will find the beautiful kitchen seamlessly integrated with the main living and dining area. The kitchen features stainless steel appliances, stunning quartz countertops, breakfast bar, and pantry. The living space is made bright and airy with multiple windows and access to the covered patio. To the left of the foyer entrance, is stair access to the second floor. On the second floor, you will find a hallway that includes storage, the laundry space, bedroom 2 and 3, and a full bath. On the opposite side of the second floor, is a small hall leading to the primary bedroom. The primary bedroom features bright and airy windows, a large walk-in closet, and ensuite bath. The ensuite bath includes a relaxing walk-in shower, double vanity sink, and additional storage. This primary suite makes the perfect retreat. Each townhome is built with our Smart Home Connected package. Schedule your tour of the Palm today!

Save
Ask
Tour
Hide
Share
Listing Snapshot
Price 
$254,900
Days On Site 
1 Day
Bedrooms 
3
Inside Area (SqFt) 
1,537 sqft
Total Baths 
3
Full Baths 
2
Partial Baths 
1
Lot Size 
0.034 Acres
Year Built 
2026
MLS® Number 
680268
Status 
Active
Property Tax 
N/A
HOA/Condo/Coop Fees 
$58.33 monthly
Sq Ft Source 
N/A
Friends & Family
Recent Activity
yesterdayListing updated with changes from the MLS®
yesterdayListing first seen on site
General Features
Acres 
0.034
Foundation 
Slab
Garage 
Yes
Garage Spaces 
1
Levels 
Two
Parking 
GarageGarage Door Opener
Parking Spaces 
1
Property Condition 
Under ConstructionNew Construction
Property Sub Type 
Townhouse
Security 
Smoke Detector(s)
Sewer 
Public Sewer
SqFt Total 
1537
Style 
Craftsman
Water Source 
Public
Zoning 
Deed Restrictions
Interior Features
Appliances 
Electric Water Heater
Cooling 
Multi UnitsCentral Air
Electric 
Circuit Breakers
Flooring 
VinylSimulated Wood
Heating 
Central
Interior 
Breakfast BarKitchen Island
Window Features 
Insulated WindowsDouble Pane Windows
Bathroom 1 
Description - Not Updated
Dining Room 
Features - Breakfast BarDescription - Breakfast Bar,Living/Dining Combo
Kitchen 
Features - Kitchen IslandDescription - Not Updated,Kitchen Island
Save
Ask
Tour
Hide
Share
Exterior Features
Construction Details 
Frame
Pool Features 
None
Roof 
Shingle
Windows/Doors 
Insulated WindowsDouble Pane Windows
Community Features
Association Dues 
700
HOA Fee Frequency 
Annually
Roads 
Paved
Schools
School District
Unknown
Elementary School
Pea Ridge
Middle School
AVALON
High School
Pace
Listing courtesy of D R Horton Realty of NW Florida, LLC : WLJohnston@drhorton.com



Copyright 2026 by the Multiple Listing Service of the Pensacola Association of REALTORS® This information is believed to be accurate but is not guaranteed. Subject to verification by all parties. This data is copyrighted and may not be transmitted, retransmitted, copied, framed, repurposed, or altered in any way for any other site, individual and/or purpose without the express written permission of the Multiple Listing Service of the Pensacola Association of REALTORS®. Florida recognizes single and transaction agency relationships. Information Deemed Reliable But Not Guaranteed. Any use of search facilities of data on this site, other than by a consumer looking to purchase real estate, is prohibited.
Last checked: 2026-04-04 09:07 AM UTC

Neighborhood & Commute
Source: Walkscore
Save
Ask
Tour
Hide
Share